1750 Kettner Blvd & 1780 Kettner Blvd
Doma, a distinctive community in historic Little Italy, encompasses two unique buildings bordered by Kettner Boulevard, Fir, Date, and California streets, providing easy access to an array of exceptional restaurants, shops, and services. The architecture, highlighted by a restored clock tower, embodies urban contemporary elegance, crafted by the acclaimed Martinez + Cutri Architects. Residents of Doma enjoy a wealth of amenities, including a two-story exercise facility, an outdoor spa, a sprawling landscaped central courtyard with a vanishing-edge fountain, secure underground parking, and a bay-view rooftop sundeck with an entertainment bar.
Doma offers walk-up residences with street-side entrances and distinctive “live/work” residential opportunities. The eight-story Doma Lofts section features one and two-story residences with spacious, open floor plans designed for creative living, voluminous floor-to-ceiling windows, and exposed concrete surfaces. The adjoining four-story Doma Towns building includes one and two-story flats and townhouses, with sizes ranging from 725 to 1,900 square feet. Experience unparalleled urban living at Doma, where sophistication meets convenience in the heart of San Diego.
| District | Downtown San Diego Little Italy |
|---|---|
| Completed | 2003 |
| Building Type | Mid Rise, 8 floors with 124 units |
| Floor Plans | One, two, three bedrooms from 795 sq ft to 2,000 sq ft. |
| HOA Fees | From $550 monthly |
| Storage | Yes |
| Pets | 2 |
| Pool | No |
| Spa | 1st Floor |
| Stories | 9 |
| Guest Suites | No |
| Excersise | 1st Floor |
| BBQ | 4th Floor |
| Concierge | No |
| Security | No |
| Guest Parking | No |
| Lease Restrictions | 26 day minimum lease |
| Builder | Citymark |
| Notes | Doma offers condos and true-type lofts in the Little Italy District. HOA fees reflect minimal level amenities. A few blocks away from the shops and restaurants on India Street. Retail spaces on the ground level include dry cleaners, Pilates studio, and a clothing boutique. Live/Work spaces with Retail on Kettner side. |
| HOA Management Group | Action Property Management |
| HOA Phone Number | (949) 450-0202 |
AMENITIES
|
Doma Residence Sky Floorplan
1 Story | 2 Baths | 1,434 Sqft Living Space
Doma Residence Sky-2 Floorplan
1 Story | 2 Baths | 1,434 Sqft Living Space
Doma Residence Westerly Floorplans
2 Stories | 2 Baths | 1,754 Sqft Living Space
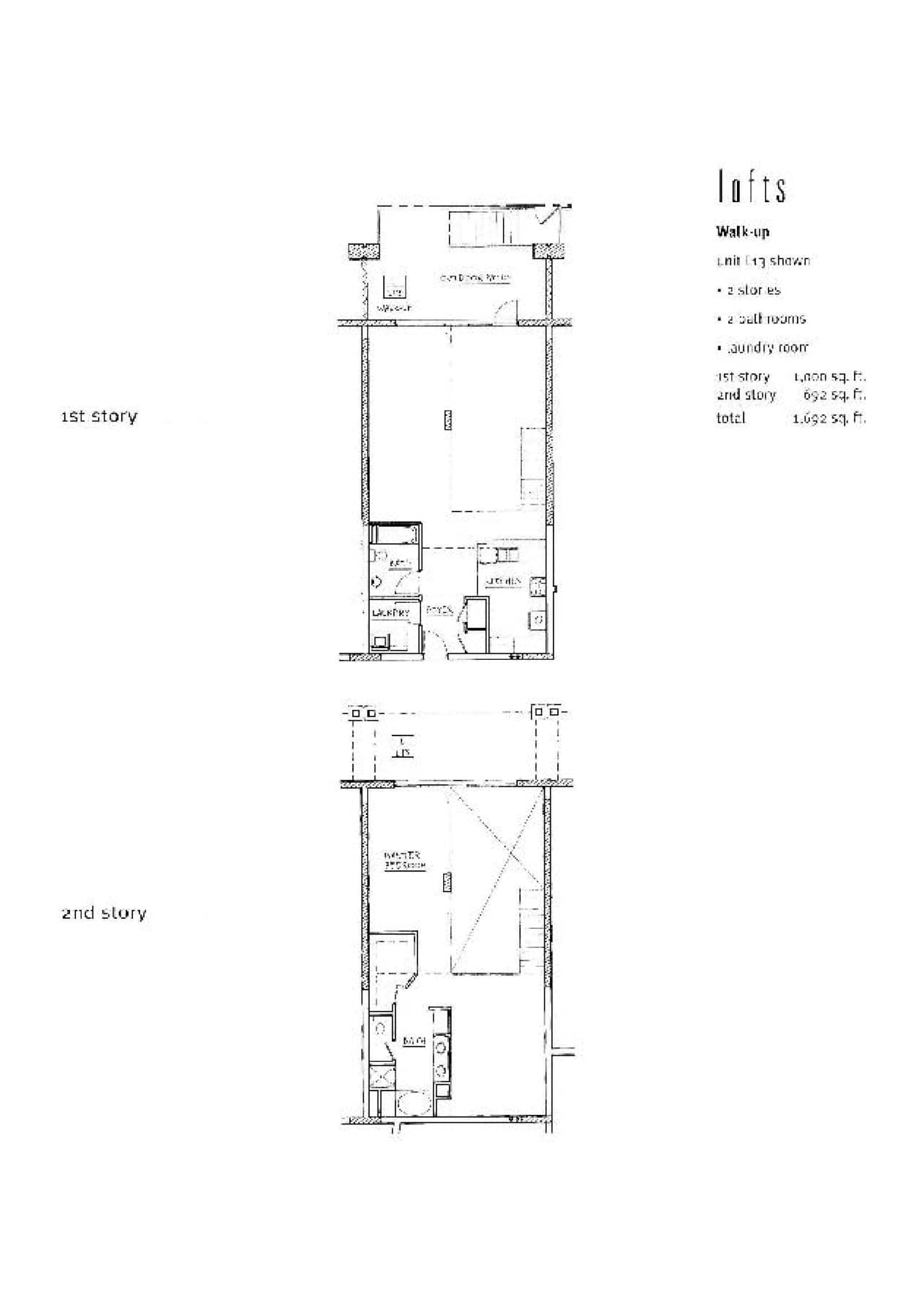
Doma Residence Walk-up Floorplans
2 Stories | 2 Baths | 1,692 Sqft Living Space
This exquisite luxury building offers a truly unrivaled lifestyle with direct-access elevators.
Nestled in the historic Banker’s Hill neighborhood, Hangar 5 is a distinctive residential development crafted by Pujji Development in 2017.
With Downtown San Diego and Hillcrest just a short ride away, Vue on 5th offers unparalleled convenience and accessibility.
An exclusive collection of condominium residences offering a vibrant material palette and inviting living spaces designed for comfort and relaxation.
Step into these elegant residences and experience the refined ambiance reminiscent of a cosmopolitan hotel.
Formerly known as Mi Arbolito, resides at the distinguished intersection of 6th Avenue and Upas Street, nestled in the prestigious neighborhood.
The Comiskey Group’s vast experience and advocacy make for an unstoppable partnership in any real estate transaction, not only for the luxury market. Partner with a team with unwavering dedication, expert negotiation skills and who is determined to assist you in accomplishing your buying and selling goals. We provide a free consultation for buying, selling, renting, or investing in San Diego.